快速报价

免费家装顾问

全程跟踪服务,避免装修陷阱
* 免费电话申请: 0351-3933777
家装品质护航
选择肖邦家居就是选择了一份美好的生活承诺
30000㎡实景展厅
68大实景样板展示
全城市环保材料以环保卫为根基
严格按照德系工艺标准
层层把关严苛验收

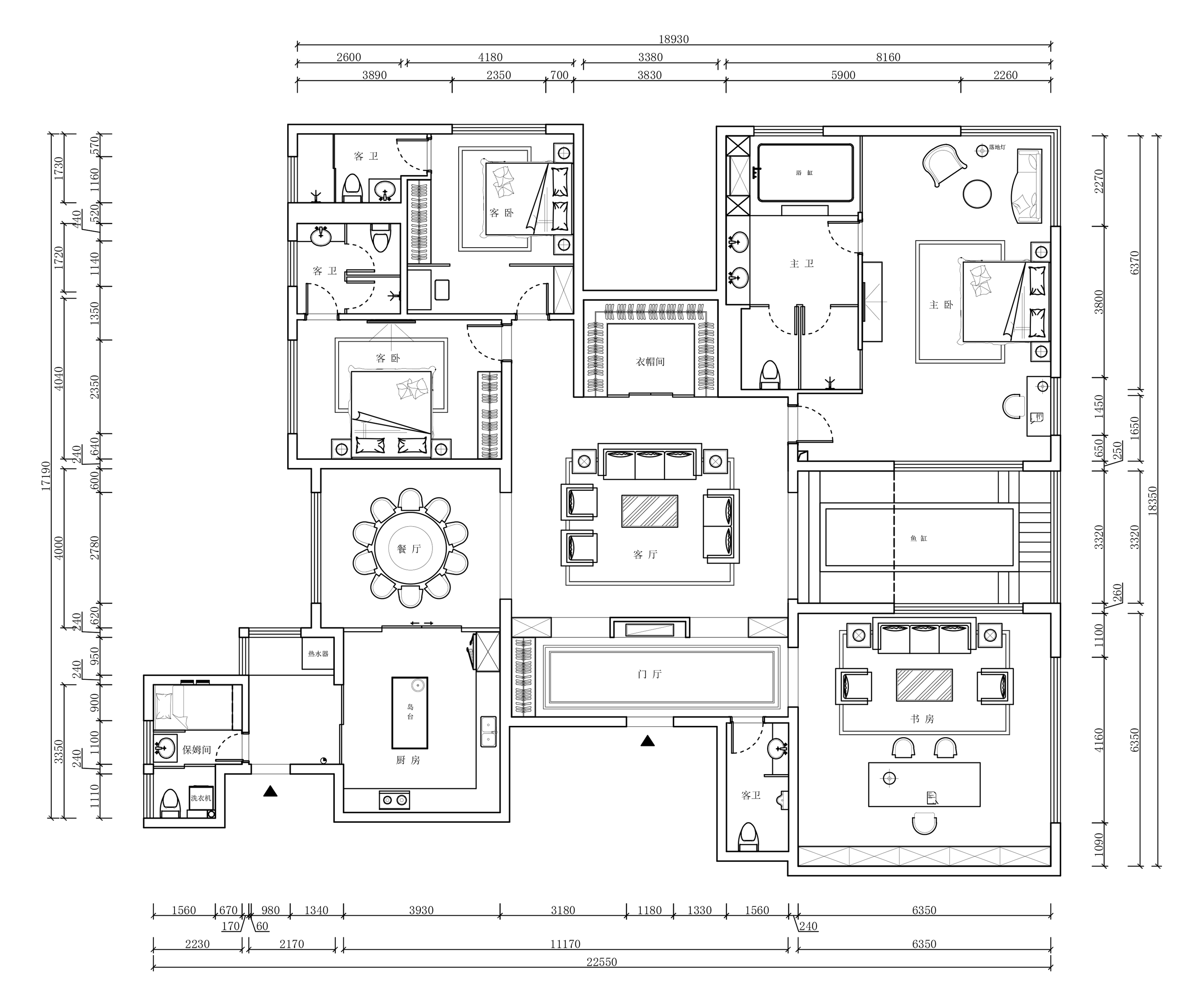
马旭峰:摩天石 392㎡ 新古典风

浏览数:65次 更新时间: 2025-06-11
  • 新古典

    案例风格

  •  
  • 平层

    案例户型

  •  
  • 161平米以上

    案例面积

  •  
  • 摩天石

    楼盘名称

  •  
  • 太原

    所在城市

  •  
  • 马旭峰

    设计师

 

户型分析

 

上一篇:马旭峰:坤杰拉菲香榭 143㎡ 简欧风

下一篇:窦砚莉:中隐澜湾 160㎡ 现代轻奢

算一算 我家装修需要多少钱
算一算我家装修需要多少钱
免费报价电话
0351-3933777