案例风格
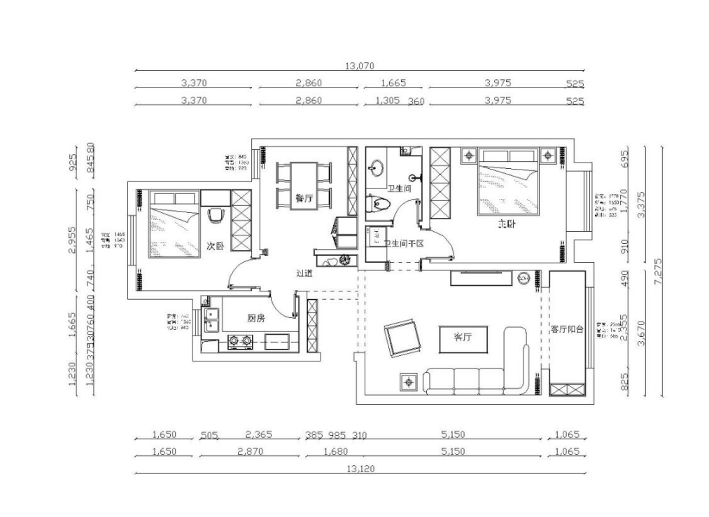
案例户型
案例面积
楼盘名称
所在城市
设计师
在这个案例中,大理石瓷砖搭配大量的金属元素、石膏线条,再加上
一些闪亮的装饰元素作为点缀,轻松演绎轻奢之美。在时尚简约的现代氛围中,为空间注入一抹优雅、高贵的蓝色,一方面用于调节气氛,另一方面也能展现出典雅的迷人风情。大理石、黄铜元素、瓷砖乃至木饰面等,都可以经过巧妙的混搭与组合,让空间的奢华感上升到一个新的高度,打造出深受年轻人喜爱的现代家居。
客厅
客厅选用白色、灰色奠定整体的色彩基调,来打造空间独有的高级质感。金属元素的加入使整体呈现出了现代轻奢的调性,阳台的落地窗为空间带来了明亮的光线。
整体开放式的布局让人感觉更为舒适,精致独特的软装配饰在氛围烘托下具有生动、丰富的表现力,将精致的生活格调缓缓铺开。

卧室
以现代元素为主体,以极简主义为核心,通过一些金属元素来凸显软装的质感。与现代风格不同的是,轻奢风格讲究的是精致、内敛、舒适的生活品质。
采用灰色调为主体,用黄色进行点缀,整体空间和谐,吊顶、墙面用金属线条进行装饰,电视柜白色加上金属线条进行装饰,突出空间的层次感,整体空间家具相对较少。

餐厅
一日、三餐、四季,家的仪式感与烟火色,与家人的温暖挚爱,在百般滋味间得以修炼。盛满温暖的室木餐厅家居,在功能完备的基础上,对空间进行了完美演绎。

户型分析
