案例风格
案例户型
案例面积
楼盘名称
所在城市
设计师
简约风格,一家五口三代人,充分利用每个卧室的空间,满足三代人的生活需求,同时又增加足够的收纳。
设计缘起:客户想要容纳足够多的物品,满足三代人的不同的生活习惯。
结构改造:合理的利用的原结构,扩大餐厅空间,由原来的狭小拥挤,变得方正大气,开阔明亮。
空间色调:大面积的浅色作为空间的主色调,体现出空间的温馨而含蓄,又增加撞色的设计与现代造型及饰品结合成就优雅,温馨的居住空间。
功能亮点:满足使用的前提下扩大餐厅空间,让餐厅和客厅彼此呼应,为便捷的生活方式再加重一笔,贯穿的步入衣帽间,在解决收纳问题的同时,提升的整个空间的气场。
客厅
增加回字形吊顶隐藏中央空调,同时地面和吊顶分别用黑色波打线和黑色太金条做点缀,上下呼应。起着提升整体空间的作用。大面积浅色的运用使得家里色彩明亮,身心愉悦。



主卧
主卧床头采用拼色调漆的方式实现两种色彩的碰撞与融合,不落俗套的碰撞方式让整个空间活泼了起来,小阳台的休闲椅让休闲的生活方式更加安逸。





厨房
超大的厨房操作空间,给客户设计多平台的操作空间满足日常的使用。三代人的饮食问题都可以有效的解决。不同的饮食习惯因为超大的操作空间变的特别简单,问题迎刃而解。

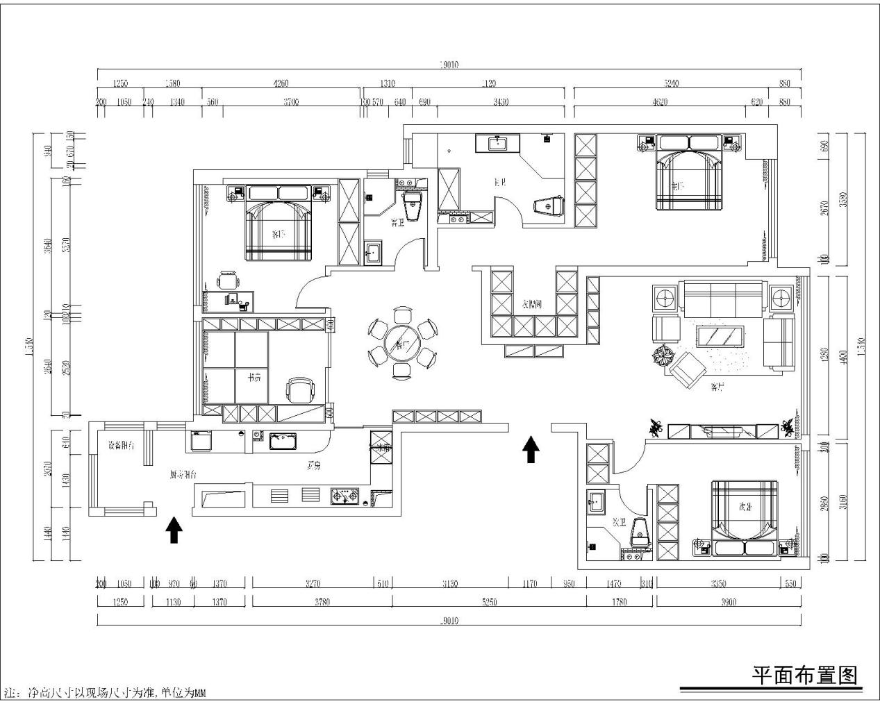
户型分析

下一篇:尹潞:煤科院 138㎡ 原木风