案例风格
案例户型
案例面积
楼盘名称
所在城市
设计师
奶油风格,那种温馨浪漫的视觉感受,设计汲取东西方的美学精髓活用简约的安逸与诗韵为都市提供一种当代年轻人居体验清风徐来,安适自在。
设计缘起:客户想要营造出安静恬淡,舒适的空间。
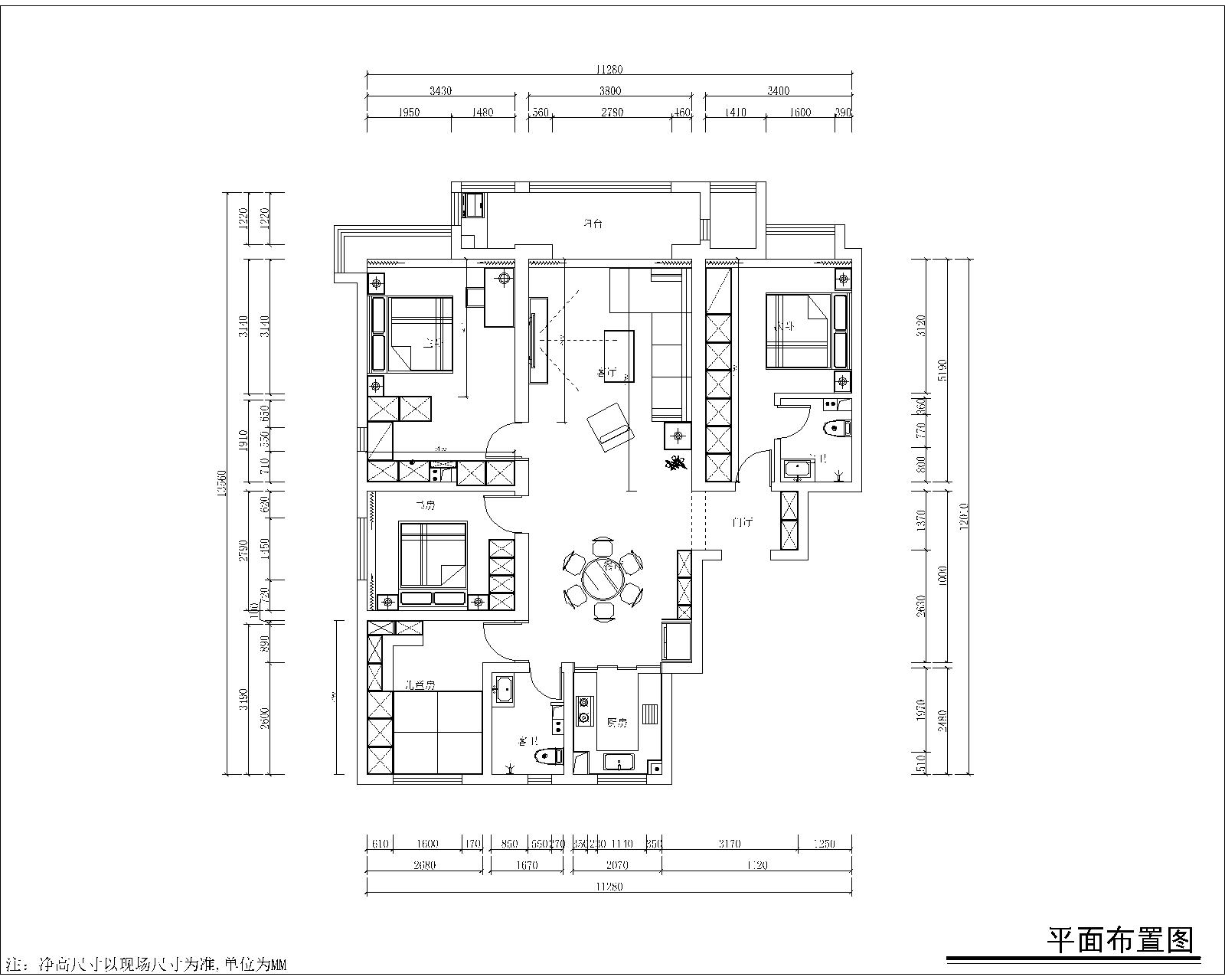
结构改造:合理的利用的原结构,客餐厅整体化吊顶塑造出空间的延展性,整体与大气,根据业主的实际需求对空间进行从新的划分与布局。
空间色调:大面积的浅色作为空间的主色调,体现出空间的温馨而含蓄,与现代造型及饰品结合成就优雅,温馨的居住空间。
功能亮点:采用石膏线条加乳胶漆的背景设计,在不失功能的前提下,为温馨浪漫的味道再加重一笔,贯穿的步入式衣帽间,在解决收纳问题的同时,提升的整个空间的气场。
客厅
温馨浪漫的氛围,少不了俏皮色彩的点缀,在米色和咖色中,更显奶油风的温馨之感。背景墙设计采用色卡碰撞和造型的柔美一体,甄选精美的装饰壁灯,温馨氛围使人回味无穷 。

主卧
时尚感极强的床头背景吸引人的目光,深浅颜色的碰撞,产生了醒目的跳色,平静的心情也需要精彩来调味,人生就如此,要活着精彩。

女儿房
整体房间采用定制家具来增加收纳空间,因地制宜运用弧形转角书桌增加书桌空间,可抽拉式榻榻米更加方便生活,明亮色彩令人心情愉悦。

厨房
根据格局调整布局,开放式厨房增大操作空间,更大的操作空间代表更大的储物空间,杂乱的厨房变得整洁有序。浪漫的日子是有人陪你一日三餐,陪你共度一生。

户型分析
