快速报价

免费家装顾问

全程跟踪服务,避免装修陷阱
* 免费电话申请: 0351-3933777
家装品质护航
选择肖邦家居就是选择了一份美好的生活承诺
30000㎡实景展厅
68大实景样板展示
全城市环保材料以环保卫为根基
严格按照德系工艺标准
层层把关严苛验收

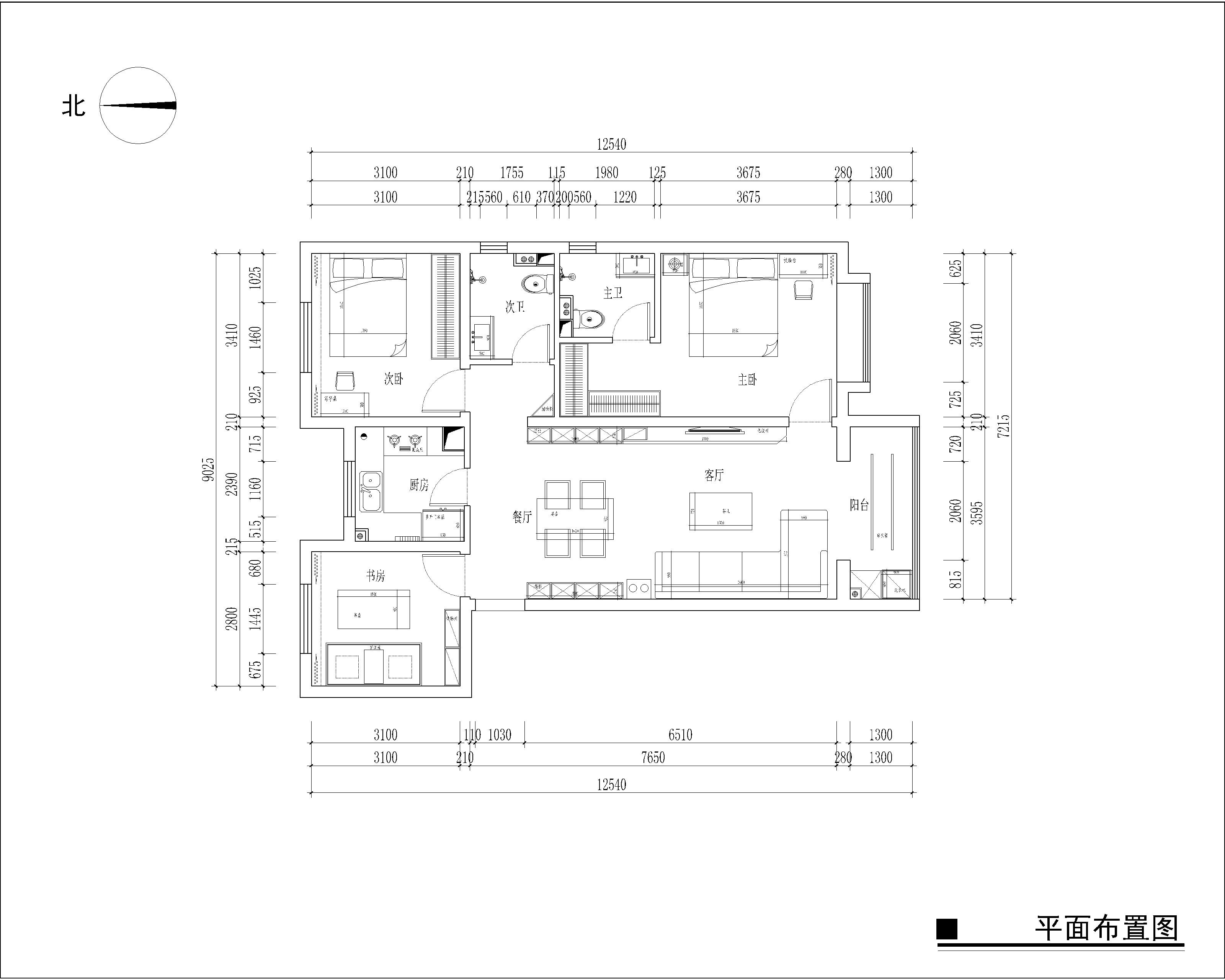
李道玺:阳光城文澜府 116㎡ 现代简约

浏览数:118次 更新时间: 2023-06-04

电视背景墙做了满墙电视柜,极简设计,内部储物空间也很强大。电视与柜子嵌平,电视插座和网络端口都藏在柜内。电视机下方选择了3500k灯带搭配深灰色岩板地台,拉升空间层次感。

卧采用半墙木饰面做背景,床头灯带遵循极简风格,见光不见灯,提升高级氛围感。背景墙上半部分是和客厅同款不同色的艺术墙布,相互呼应保持了空间连贯性。主卧不安装电视机,但是在衣柜前暗藏了投影幕布槽,满足业主的观影需求。

上一篇:李道玺:首开·国风上观 141㎡ 新中式

下一篇:马旭峰:龙堡绿洲 180㎡ 奶油风

算一算 我家装修需要多少钱
算一算我家装修需要多少钱
免费报价电话
0351-3933777